Apartment for sale with elevator, in Barcelona
Barcelona.
For sale Ref. 1266-18-02595
Characteristics
3
1
Elevator
In progress
Description
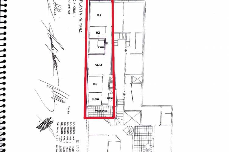
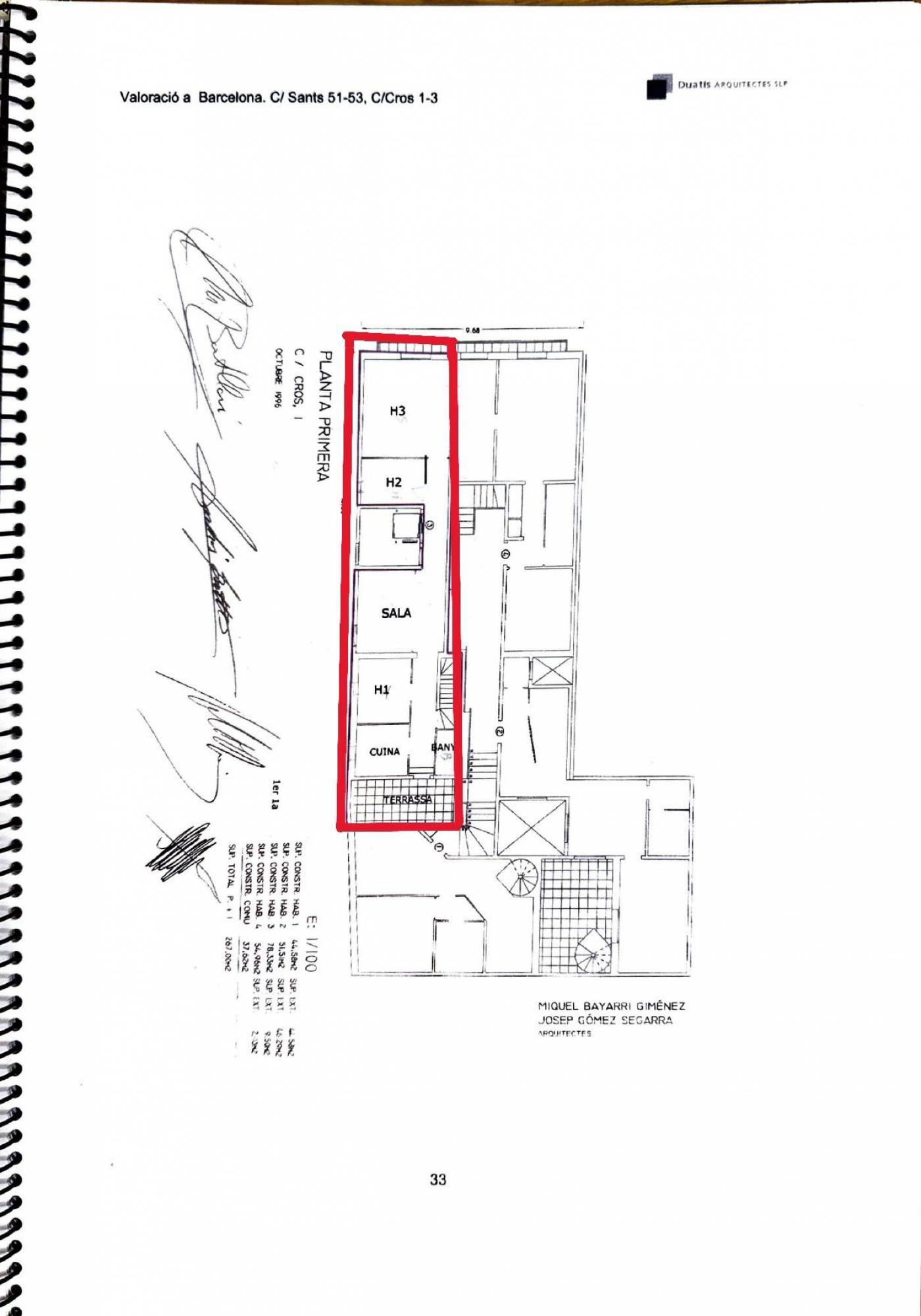
Looking for an attractive investment in a prime location? We present this apartment in the heart of Sants. With 3.40m-high ceilings and large windows, it's surrounded by all the services and shops you need, with excellent public transport connections. ~~The property has an elevator that takes you directly to the hallway, facilitating accessibility. It has three bedrooms, one of them double, and a full bathroom. Access to the staircase is pending in order to process the occupancy certificate. It is currently in need of renovation, giving you the opportunity to redistribute the spaces to your liking, creating a fourth bedroom or reorganizing the kitchen and bathroom to optimize their functionality. In addition, the home has a small balcony and an interior terrace, ideal for enjoying the outdoors and natural light. ~~For more details and to discuss options, please do not hesitate to contact us. This is your opportunity to transform and enhance this property in a booming area!
Location
Barcelona