Casa amb gran jardí amb piscina a Vilanova i la Geltrú, La Collada
Vilanova i la Geltrú.
Compra Ref. 12308-CV0011
Característiques
3
2
Calefacció
Aire condicionat
Piscina
2
Descripció
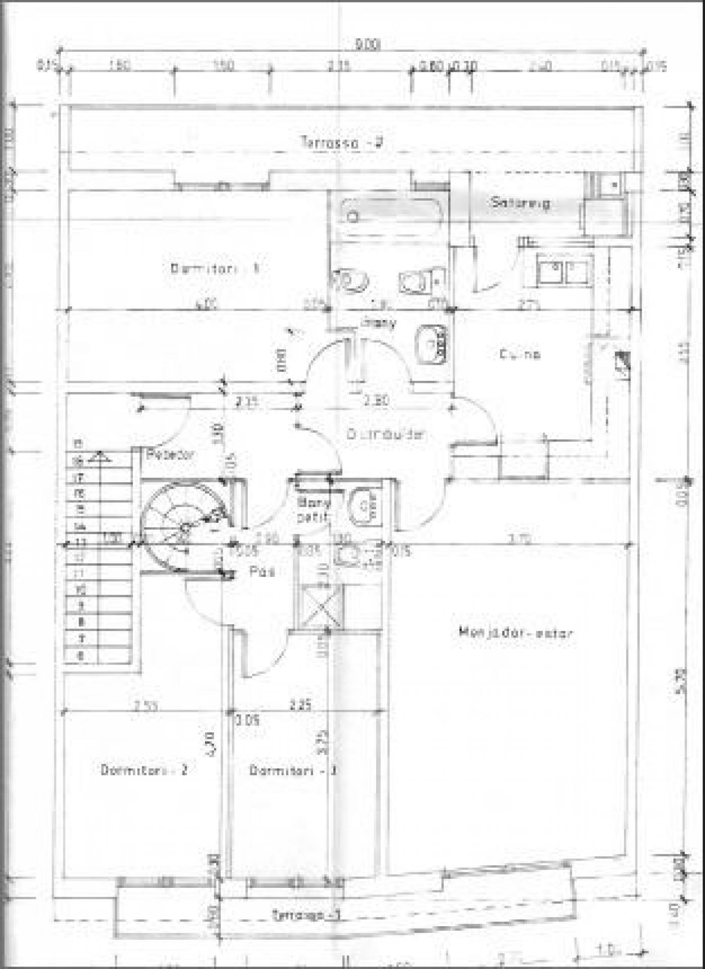
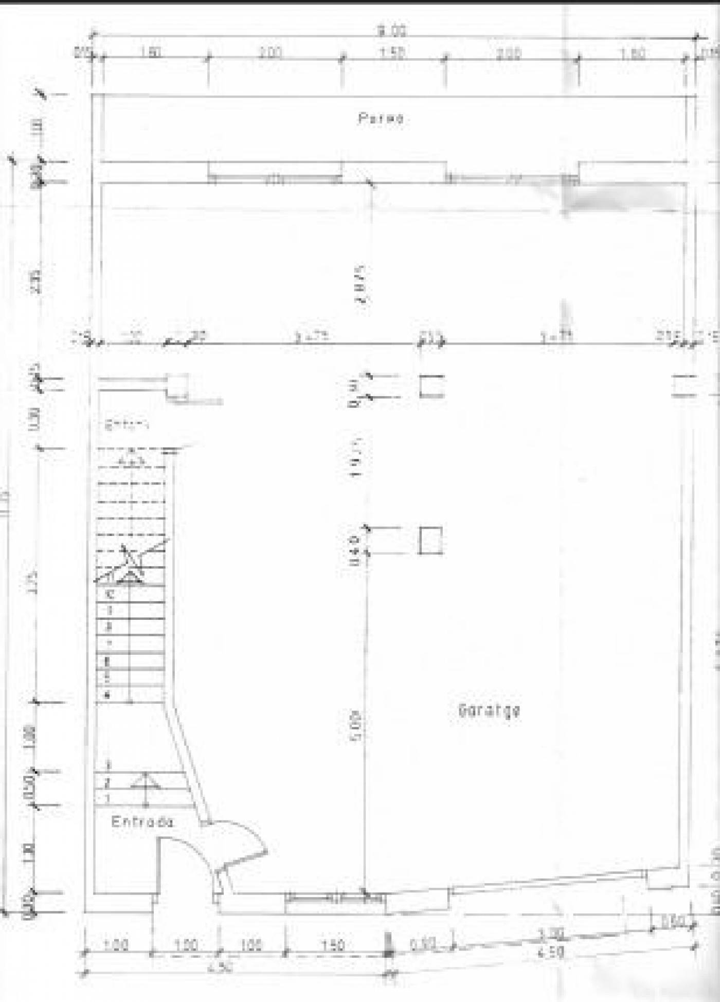
Casa amb Jardí i Piscina~~Descobreix aquesta espectacular casa adossada que t'ofereix tot el que necessites per gaudir d'un estil de vida còmode i tranquil. Amb un ampli jardí, ideal per a les teves reunions familiars o per relaxar-te al sol, aquesta propietat destaca per la seva piscina amb coberta mòbil, perfecta per a l'estiu i l'hivern. ~~La casa, de 250 m² construïts i 230 m² útils, compta amb tres dormitoris lluminosos i dos banys, un dels quals ha estat reformat recentment. A més, gaudeix d'un porxo acollidor, una terrassa i un balcó que et permetran gaudir de les vistes del teu entorn. La calefacció de gasoil assegura un ambient càlid durant els mesos més freds.~~Amb un garatge capacitat per a quatre vehicles i un espai addicional per a taller, aquesta casa és perfecta per als amants de l'automoció o aquells que necessiten espai extra. Les golfes amb terrassa afegeixen un encant especial a aquesta propietat, oferint un espai versàtil per a les teves necessitats. No deixis passar l'oportunitat de viure en aquest immoble en bon estat, construït el 1995, amb un consum energètic eficient.
Ubicació
Vilanova i la Geltrú